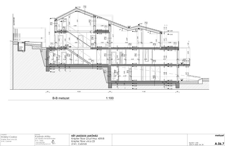
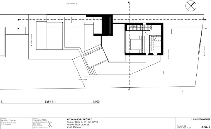
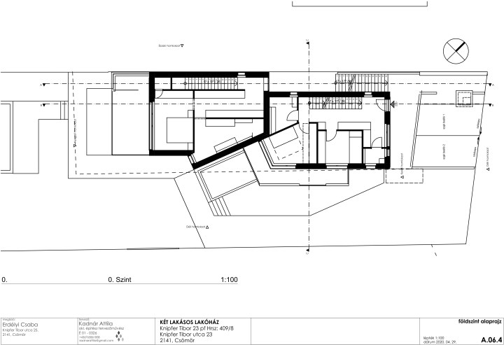
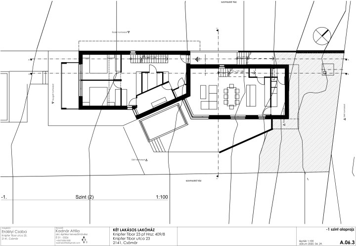
Wohnhaus, 2141 Knipfer Tibor str. 23. Csömör
Auftraggeber | Privater Bauträger
Aufgabenstellung | Entwurf und Einreichung eines Wohnhauses mit 2 Wohnungen.
Status | Bauvorbereitung
2019 KOKAA ARCHITEKTEN
Kategorien:PROJEKTE
Wohnhaus, 2141 Knipfer Tibor str. 23. Csömör
Auftraggeber | Privater Bauträger
Aufgabenstellung | Entwurf und Einreichung eines Wohnhauses mit 2 Wohnungen.
Status | Bauvorbereitung
2019 KOKAA ARCHITEKTEN
Kategorien:PROJEKTE