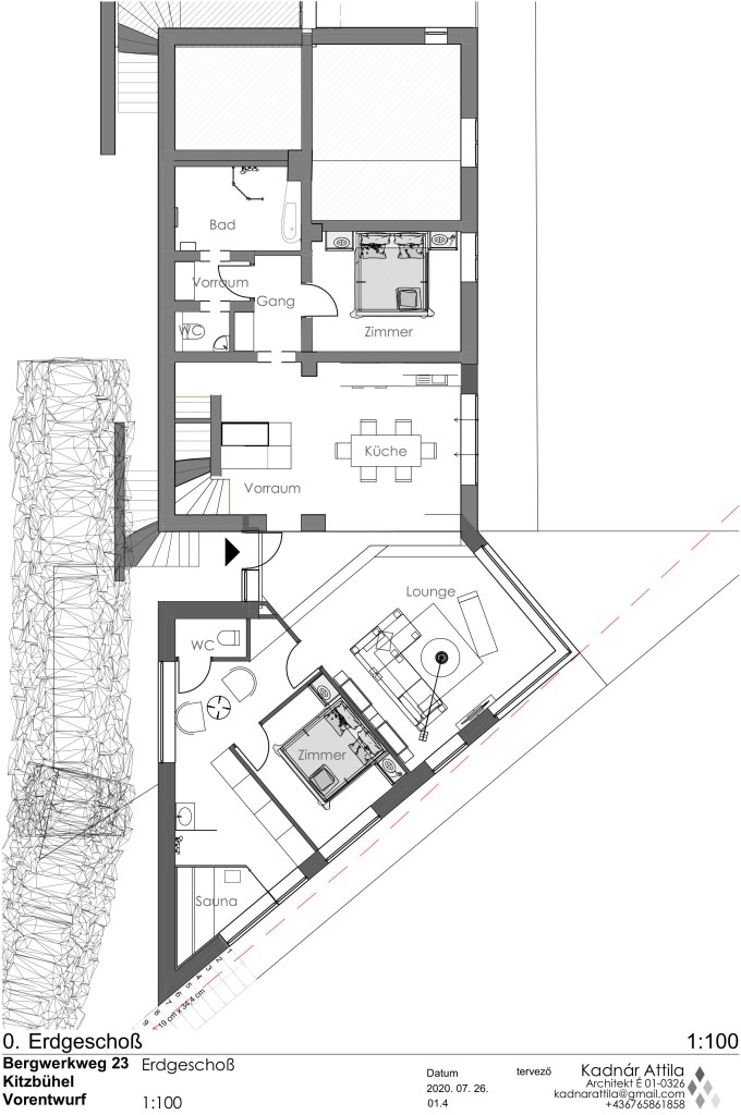
Einfamilienhaus, Kitzbühel
Auftraggeber | Privat
Aufgabenstellung | Erweiterung eines Einfamilienhauses, Synergie zwischen Modernität und Tradition
Status | Plan in Bearbeitung
Eine harmonische Verschmelzung von Neu und Alt, eingebettet in eine Landschaft von atemberaubender Schönheit. Raumgreifende Fenster mit spektakulären Blickwinkel lassen die grandiosen Bergpanoramen gleich in den Wohnräumen einstrahlen. Die spannende Geländeverhältnisse werden unter Einsicht höchster Nachhaltigkeitsansprüche ausgeschöpft und respektieren gleichzeitig die Umgebung.
2020 KOKAA ARCHITEKTEN
Kategorien:PROJEKTE








